Wettbewerbsergebnis für erste Wohnquartiere auf Patrick-Henry-Village
Die ehemalige Wohnsiedlung der US-Army, Patrick-Henry-Village (PHV), soll in den kommenden Jahren zu Heidelbergs 16. Stadtteil entwickelt werden. Grundlage ist der Dynamische Masterplan, der von der Stadt und der Internationalen Bauausstellung (IBA) zusammen mit dem Planungsbüro KCAP (Zürich) entwickelt und im Juni 2020 vom Gemeinderat beschlossen wurde. In einem ersten Schritt wird nun die Bundesanstalt für Immobilienaufgaben (BImA) als Eigentümerin der rund 100 Hektar großen Liegenschaft damit beginnen, im südlichen Teil von PHV neuen Wohnraum und Arbeitsorte zu schaffen. Das Ergebnis eines dafür ausgeschriebenen Architektenwettbewerbs wurde dem Gemeinderat in seiner Sitzung am 14. Oktober 2021 vorgestellt.
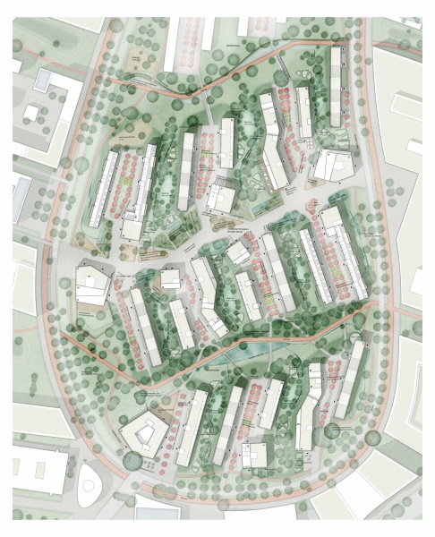
Nach der Wettbewerbsausschreibung sollten auf den Baufeldern B3 und B4 Wohnraum für 1.200 bis circa 1.400 Bewohner und Flächen für rund 400 Arbeitsplätze geschaffen werden. Dabei bestand der Wunsch, so viel Gebäudebestand zu erhalten, dass das charakteristische Bild der Siedlung als Identität weitergetragen wird. Wettbewerbsgewinner wurden dann die Landschaftsarchitekten der Planergruppe Oberhausen, Essen mit Cityförster architecture+urbanism, Hannover. Unter dem Motto „Green Zipper“ hat der 1. Preisträger laut Preisgericht die städtebauliche Idee des Dynamischen Masterplans überzeugend interpretiert. Nach Meinung des Preisgerichts bietet der gut ausgearbeitete Entwurf ein stabiles freiraumplanerisches Gerüst, auf dessen Grundlage ein vielfältiges und nutzungsgemischtes Stadtquartier entwickelt werden kann. Zudem sieht die Arbeit grundsätzlich den vollständigen Erhalt von elf Bestandszeilen mit geringem und mittlerem Sanierungsbedarf vor. Zwölf weitere Zeilenbauten müssen aufgrund ihres schlechten Zustands zurückgebaut und ersetzt werden.
Weiteres Vorgehen
Aufbauend auf den Ergebnissen des Wettbewerbs soll in Verantwortlichkeit der BImA zeitnah die bauliche Umsetzung erfolgen. Die Baumaßnahmen sollen in mehreren Realisierungsstufen abschnittsweise erfolgen. Ziel ist mit einer Sanierung erster Gebäude baldmöglichst zu beginnen.
